nije tu ništa objašnjeno već samo ispoljavanje frustracije zbog vlastitih propusta koje su se na samom startu mogle sprečiti. I kao što je već neko napisao u to vreme kupovine moglo se na više lokacija kupiti stan možda čak i boljih od BW.

nije tu ništa objašnjeno već samo ispoljavanje frustracije zbog vlastitih propusta koje su se na samom startu mogle sprečiti. I kao što je već neko napisao u to vreme kupovine moglo se na više lokacija kupiti stan možda čak i boljih od BW.
Upravo tako. I pitanje je šta nas sve još čeka. U garažama i ostavama svaki dan puca neka cev, i curi voda na sve strane. Garažna vrata ne rade od useljenja. Sve brave razvaljene na ulazima iz garaže u lift. Održavanje zgrade koje je u rukama investitora cirkus. Rasveta ne radi. Realno nema kraja problemima.Većina propusta su ipak od investitora ovde.
Stanovi u K distriktu izgledaju kao da su ih deca crtala.Ne volim NBG, prva zgrada Novog Dorćola i K-District su bili rasprodati, druga zgrada Novog Dorćola jedva je bila u planu. Vračar je za mene bio preskup.
Čini mi se da niste bili upoznati sa situacijom od pre 3-4 godine.
Kako je neko mogao bilo sta da spreci sto jos nije bilo ni zapoceto?nije tu ništa objašnjeno već samo ispoljavanje frustracije zbog vlastitih propusta koje su se na samom startu mogle sprečiti. I kao što je već neko napisao u to vreme kupovine moglo se na više lokacija kupiti stan možda čak i boljih od BW.
Ma strasno. Priblizava se dan useljenja a ja bih da ga izbegnem.Veoma sličan je i moj samo je manji za 10 m2, a kupatila, vešernica, hodnici, i terasa su isti pa ja imam manje sobe, dnevni deo. Procentualno veliki deo kvadrata je otišao na prostorije koje se slabije koriste.
Nisam jedina od vlasnika koja komentariše da moglo malo više kvadrata da se ostavi za sobe. Ali to je samo lični utisak, i opet da me botovi ne zaskoče, videla sam plan imala kote.![]()
sasvim jednostavno, ako se neko posle kupovine stana žali što nema hodnika i što mu dostavljači vide ceo stan kad otvori vrata. I što se glupo oseća da celo vreme gleda u ulazna vrata i žali kako nema predsoblja. Pri tom sve ove stvari su bile definisane i mogle su se pre kupovine videti u planu stana.Kako je neko mogao bilo sta da spreci sto jos nije bilo ni zapoceto?
Vidi se zato sto je open concept, kuhinja i dnevna soba zajedno. Obicno su bas tu ulazna vrata pored same kuhinje.sasvim jednostavno, ako se neko posle kupovine stana žali što nema hodnika i što mu dostavljači vide ceo stan kad otvori vrata. I što se glupo oseća da celo vreme gleda u ulazna vrata i žali kako nema predsoblja. Pri tom sve ove stvari su bile definisane i mogle su se pre kupovine videti u planu stana.
Znači, ako se ostavi po strani sve ono što je došlo posle i što se nije moglo na početku predvideti poput krivih pločica i loših vrata etc...
raspored i plan stana se mogao videti u samom startu i već tad se moglo sprečiti tačnije odustati od kupovine i tražiti stan sa hodnikom, sa predsobljem
i gde mu dostavljači ne vide ceo stan i gde se ne oseća glupo da gleda ulazna vrata.
i ovde je open concept kuhinje i dnevne sobe zajedno. Ali opet drugačiji plan. Sve kako čovek u startu pre kupovine sebi po planu odabere. Imam razumevanja za sve vezano reklamacije u stanu, loš kvalitet sve je to moguće i nije se imalo uticaj. To se dešava i svugde na svetu kod gradnje ili kupovine nekretnina, i nije u redu. Ali ove žalopojke kako nema predsoblja, gledanja u vrata etc...a plan stana i kvadratura pojednih prostorija od samog početka poznat, to je čisto preterivanje i nedostatak prostorne percepcije. I koju god alternativu bilo ko na ovoj temi ponudio, da li se radilo o prodaji ili drugo rešenje, ništa nije bilo moguće ,niti je moguće, niti će biti moguće. Ali se žalimo i dalje. Prodaj ga više i oslobodi se.Vidi se zato sto je open concept, kuhinja i dnevna soba zajedno. Obicno su bas tu ulazna vrata pored same kuhinje.
Što se vi uporno bavite sa mojim stanom, zapažanjima i ličnim utiscima?sasvim jednostavno, ako se neko posle kupovine stana žali što nema hodnika i što mu dostavljači vide ceo stan kad otvori vrata. I što se glupo oseća da celo vreme gleda u ulazna vrata i žali kako nema predsoblja. Pri tom sve ove stvari su bile definisane i mogle su se pre kupovine videti u planu stana.
Znači, ako se ostavi po strani sve ono što je došlo posle i što se nije moglo na početku predvideti poput krivih pločica i loših vrata etc...
raspored i plan stana se mogao videti u samom startu i već tad se moglo sprečiti tačnije odustati od kupovine i tražiti stan sa hodnikom, sa predsobljem
i gde mu dostavljači ne vide ceo stan i gde se ne oseća glupo da gleda ulazna vrata.
Nadam se da će sve biti okMa strasno. Priblizava se dan useljenja a ja bih da ga izbegnem.![]()
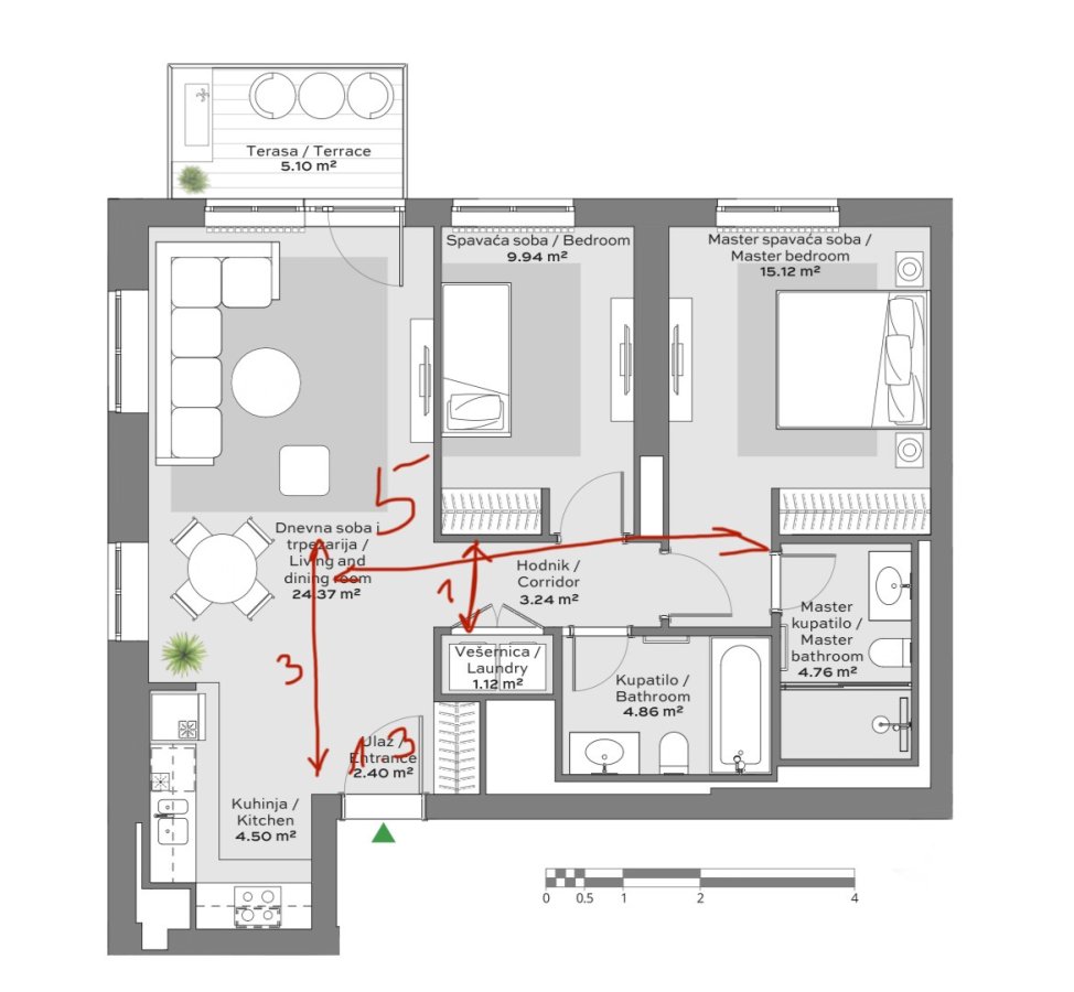
Да, једноставно решење је да ставите гипсану плочу према кухињи и добићете пристојно предсобље и потпуно други утисак.Evo ga plan. Realni hodnik je veći nego što je u planu. Negde je oko 9m2. Bukvalno ne može za ništa drugo da se koristi. Dva kupatila 9.5m2. Vešernica nešto veća nego na slici, oko 1.5m2. Sve to zajedno sa terasom od 5 m2 je 25m2, a stan oko 75m2. Mala soba je ispod 10m2.
Šta znam mislim da je mogao malo bolji raspored i nešto manja kupatila na ovu kvadraturu, jer su u ostalih 50m2 smeštene dve spavaće, dnevna i trpezarija.
Teško mi pada i što klima nije integrisana u zgradu i što mi zauzima puno od terase.
I realno ružno izgleda kada se sedi na terasi. Ceo motor se vidi, cevi itd. I prljavo je oko nje, jer do nekih delova ne može uopšte da se pridje, da se očiste.
Pogledajte prilog 235331
Ako je planirano da bude porodicni stan, meni bi ovde najveci problem bio manjak za odlaganje stvari...ovo moze lepo da se skocka sa arhitektom ali ste to trebali pre useljenja da uradite projekat..kuhinja bi bila dosta korisnija sa manjim ostrvom koje ide iz zida do prozora u trpezariji, od master kupatila je mogao da se uradi walk-in garderober itd...Evo ga plan. Realni hodnik je veći nego što je u planu. Negde je oko 9m2. Bukvalno ne može za ništa drugo da se koristi. Dva kupatila 9.5m2. Vešernica nešto veća nego na slici, oko 1.5m2. Sve to zajedno sa terasom od 5 m2 je 25m2, a stan oko 75m2. Mala soba je ispod 10m2.
Šta znam mislim da je mogao malo bolji raspored i nešto manja kupatila na ovu kvadraturu, jer su u ostalih 50m2 smeštene dve spavaće, dnevna i trpezarija.
Teško mi pada i što klima nije integrisana u zgradu i što mi zauzima puno od terase.
I realno ružno izgleda kada se sedi na terasi. Ceo motor se vidi, cevi itd. I prljavo je oko nje, jer do nekih delova ne može uopšte da se pridje, da se očiste.
Pogledajte prilog 235331
Ma bice to sve u redu. Da li ste vec ugradili kuhinju? Planiram da plakare i kompletnu kuhinju odradi Crvena Jabuka. U stvari ceo "namestaj"Evo ga plan. Realni hodnik je veći nego što je u planu. Negde je oko 9m2. Bukvalno ne može za ništa drugo da se koristi. Dva kupatila 9.5m2. Vešernica nešto veća nego na slici, oko 1.5m2. Sve to zajedno sa terasom od 5 m2 je 25m2, a stan oko 75m2. Mala soba je ispod 10m2.
Šta znam mislim da je mogao malo bolji raspored i nešto manja kupatila na ovu kvadraturu, jer su u ostalih 50m2 smeštene dve spavaće, dnevna i trpezarija.
Teško mi pada i što klima nije integrisana u zgradu i što mi zauzima puno od terase.
I realno ružno izgleda kada se sedi na terasi. Ceo motor se vidi, cevi itd. I prljavo je oko nje, jer do nekih delova ne može uopšte da se pridje, da se očiste.
Pogledajte prilog 235331
Ma bice to sve u redu. Da li ste vec ugradili kuhinju? Planiram da plakare i kompletnu kuhinju odradi Crvena Jabuka. U stvari ceo "namestaj"
Tacno! Samo zbog odlaganja stvari sam uzeo stan sa dve spavace sobe.Ako je planirano da bude porodicni stan, meni bi ovde najveci problem bio manjak za odlaganje stvari...ovo moze lepo da se skocka sa arhitektom ali ste to trebali pre useljenja da uradite projekat..kuhinja bi bila dosta korisnija sa manjim ostrvom koje ide iz zida do prozora u trpezariji, od master kupatila je mogao da se uradi walk-in garderober itd...
Prvo ovo je otvoreni forum za sve, a ne samo za stanovnike Quarteta. Znači ulazimo u dijalog, delimo mišljenja i iskustva. Neki nam se sviđaju neki ne. I sve je to ok.Što se vi uporno bavite sa mojim stanom, zapažanjima i ličnim utiscima?
Zar ne biste trebali da budete veoma zauzeti oko useljenja u svoj stan?
Ovo je tema za Quartet, ali verujem da i za vaši zgradu postoji neka na kojoj se dele utisci.
Ja ovde ne vidim neki neiskorisceni prostor.Evo ga plan. Realni hodnik je veći nego što je u planu. Negde je oko 9m2. Bukvalno ne može za ništa drugo da se koristi. Dva kupatila 9.5m2. Vešernica nešto veća nego na slici, oko 1.5m2. Sve to zajedno sa terasom od 5 m2 je 25m2, a stan oko 75m2. Mala soba je ispod 10m2.
Šta znam mislim da je mogao malo bolji raspored i nešto manja kupatila na ovu kvadraturu, jer su u ostalih 50m2 smeštene dve spavaće, dnevna i trpezarija.
Teško mi pada i što klima nije integrisana u zgradu i što mi zauzima puno od terase.
I realno ružno izgleda kada se sedi na terasi. Ceo motor se vidi, cevi itd. I prljavo je oko nje, jer do nekih delova ne može uopšte da se pridje, da se očiste.
Pogledajte prilog 235331
složio bih se s ovim potpuno.Ja ovde ne vidim neki neiskorisceni prostor.
Iz hodnika se ulazi u sve sobe i u vesernicu, mislim nekako se mora doci do njih.
Terasa od 5m2 je sasvim normalna i logicna i to nije neiskoriscen prostor jer je to terasa.
Kupatila sasvim normalne velicine, jedino da li su dva morala biti je upitno, ali tako se namece u visoj klasi projektovanja.
Ja sam u svom stanu izbacio drugo kupatilo i napravio radni deo.
Kuhinju bih odvojio toniranim staklenim paravanima sa staklenim vratima.
To od ulaznih vrata pa pored trpezarije nije hodnik nego prostor trpezarije koji joj daje prostranost. Imate oko 3 duzna metra hodnika koliko ja vidim.
Moj utisak je da vi zamisljate da u svaki m2 stana nesto treba da se stavi, kao u magacinu, jer ako ostane prazan onda je to bacen m2... stan ima i prazne prostore i ovde je sve kako treba uz pravilno uredjenje.
Ja sam kupila kuhinju sa stanom. Nisam mogla drugačije, ali sam je odmah promenila. Nije mi odgovarala zbog bele tehnike. Ja sam sve uzela onako kako meni odgovara i nisam htela da kuhinju prilagodjavam već sam pravila kako meni odgovara. Imam sve Bosch serija 8 uredjaje, zasebni frižider i zamrzivač, mikrotalasnu, aspirator koji se ne ugradjuje tako da nisam mogla da napravim kompromis.Ma bice to sve u redu. Da li ste vec ugradili kuhinju? Planiram da plakare i kompletnu kuhinju odradi Crvena Jabuka. U stvari ceo "namestaj"
Toplotna je ok. A zvučna slaba, sve se čuje.Cao svima, kakva je situacija sa toplotnom i zvucnom izolacijom u Quartet 1 zgradi? I neko je pominjao vlagu u garazi? Da li je to i dalje slucaj?