Гага
Professional
Да пренесем и овде са подтеме "Разни пројекти" https://forum.beobuild.rs/threads/razni-projekti.546/page-465#post-1198283
Јуче-23.01.2024. објављена je јавна презентација урбанистичког пројекта за изградњу стамбено-пословног комплекса у/на Новом Београду, блок 51, насеље Бежанијска коса. Све имате овде https://www.beograd.rs/cir/gradski-...ratnosti-3popr5ps-na-gp-51-ko-novi-beograd_2/
Ради се о плацу где је Војна Грађевинска Установа, тј између зграда које се сада граде (Лукс 51) и пословног дела овог блока где се налази Комерцијална банка, т.ц. Оков, Емезета, итд., а поред улице Партизанске авијације. Иначе власници плаца (има пет делова), по катастру, су Имел група и Блистер Пропертис, а спомиње се и Лукс Инвестмент. Неко од њих ће можда бити и инвеститор!
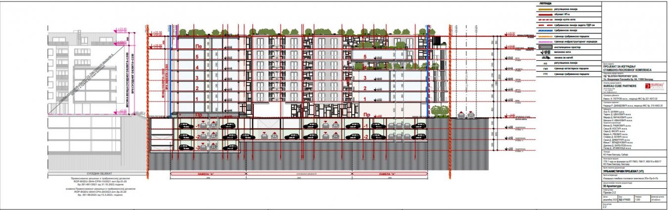
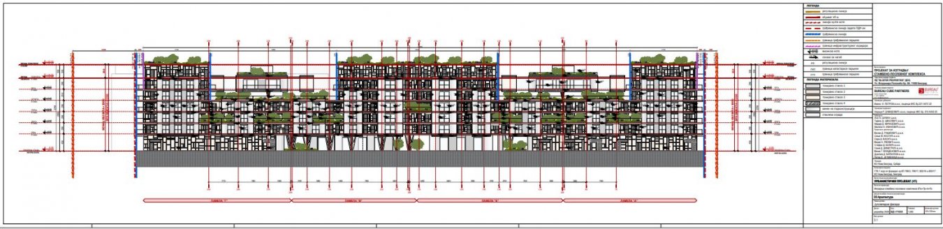
Овај нови стамбено-пословни комплек ће бити спратности 3По+Пр+5+Пс, висине 22 метра, биће четири ламеле (зграде), са укупно 408 станова разних структура, 24 пословних просторија, 53 пословних апартмана, једну предшколску установу (депаданс) од укупно 556 квадрата.
Стамбене зграде ће имати, ламела А=121 стан, ламела Б=102 стана, ламела В=94 стана, ламела Г=91 стан. Подземне гараже ће бити у три нивоа са укупно 614 паркинг места, 1По= 246 паркинга, 2По=278 паркинга, 3По=90 паркинга), а од тога ће бити 485 места за станаре, а од тога и 36 за особе са инвалидитетом, за запослене у пословним просторијама биће 129 паркинга.
Ортофото
Цртежи изгледа зграда:
Изглед зграде А
Изглед зграде Б
Изглед зграде В
Изглед зграде Г
Пресек 1 и 2
Цртежи
Основа гараже-1, приземља и 1.спрата
Подужни пресек зграда и гаража
Јуче-23.01.2024. објављена je јавна презентација урбанистичког пројекта за изградњу стамбено-пословног комплекса у/на Новом Београду, блок 51, насеље Бежанијска коса. Све имате овде https://www.beograd.rs/cir/gradski-...ratnosti-3popr5ps-na-gp-51-ko-novi-beograd_2/
Ради се о плацу где је Војна Грађевинска Установа, тј између зграда које се сада граде (Лукс 51) и пословног дела овог блока где се налази Комерцијална банка, т.ц. Оков, Емезета, итд., а поред улице Партизанске авијације. Иначе власници плаца (има пет делова), по катастру, су Имел група и Блистер Пропертис, а спомиње се и Лукс Инвестмент. Неко од њих ће можда бити и инвеститор!
Овај нови стамбено-пословни комплек ће бити спратности 3По+Пр+5+Пс, висине 22 метра, биће четири ламеле (зграде), са укупно 408 станова разних структура, 24 пословних просторија, 53 пословних апартмана, једну предшколску установу (депаданс) од укупно 556 квадрата.
Стамбене зграде ће имати, ламела А=121 стан, ламела Б=102 стана, ламела В=94 стана, ламела Г=91 стан. Подземне гараже ће бити у три нивоа са укупно 614 паркинг места, 1По= 246 паркинга, 2По=278 паркинга, 3По=90 паркинга), а од тога ће бити 485 места за станаре, а од тога и 36 за особе са инвалидитетом, за запослене у пословним просторијама биће 129 паркинга.
Ортофото
Цртежи изгледа зграда:
Изглед зграде А
Изглед зграде Б
Изглед зграде В
Изглед зграде Г
Пресек 1 и 2
Цртежи
Основа гараже-1, приземља и 1.спрата
Подужни пресек зграда и гаража
