Šta je novo?

Razni projekti

Ne bih rekao da je ovo cececija, jeste inspirisano starijim stilovima, ali nije jeftina kopija. Rekao bih čak da najviše vuče na art deko, dok cececije idu više u prošlost. Cececije pokušavaju da naguraju što više dekorativnih elemenata, jeftino izvedenih, neproporcionalno postavljenih na malom prostoru, a ovde to nije slučaj.

Razlog zašto pišem ovo je što ako previše koristimo izraz cececija, izlizaćemo ga, postaće besmislen. A bitan je jer opsuje stil koji je pogrešan i ružan isključivo objektivno, bez obzira na lični ukus.
Bolje i to nego beskrajna ''moderna'' silovanja à la 70-e.
 
NIsam kupac nego vidim po projektu da ce biti lepa izgradnja......bolje nego da stoji onako pusto
U normalnoj zemlji bi bilo bolje, nama u Zarkovu i na Banovom brdu to znaci vecu saobracajnu guzvu, zagadjeniji vazduh, visu temperaturu vazduha u okolini jer umesto stotine drveca dobijamo hiljade kvadrata betona, losije grejanje i slabiji pritisak u vodovodnoj mrezi. Prosto infrastruktura nije planirana niti prosirena za toliki broj novih stanova.
 
Tako ti je i na vrtovima Rakovice i okolnim projektima i lamelama na Vidikovcu koje užurbano niču. Infrastrukture nema dovoljno, naročito saobraćajnica. Pri tom jedan solidan broj vrtlara će se voziti kroz Žarkovo na putu ka poslu i gradu (jer alternativa nema mnogo) pa će tu gužva neminovno biti mnogo veća čak i bez ovog zarkovackog projekta.

Ne radujem se što je i na Žarkovu isto, već rezignirano konstatujem da tu nema pomoći niti promisli.
 
20230916_120921.jpg
1000010793.jpg

Кумодрашка.
 
NIsam kupac nego vidim po projektu da ce biti lepa izgradnja......bolje nego da stoji onako pusto

I nisu ništa zaustavili, svakog jutra već u pola 7 počinju sa teškim građevinskim radovima koji se čuju u krugu od dva kilometra, nekakav tenk im trkeljiše po prostoru po ceo dan, kao da si na vojnoj vežbi, koriste prostor oko parkinga i dvorišta susednog bloka zgrada za prevoženje zemlje i šuta... Još su poslednjih dana počeli da nailaze na kamenito zemljište, pa svaki potez bagera u kamion bude ko rušenje manjeg objekta.

Ovo ako se nastavi ovako, stanari će se vrlo brzo pobuniti i organizovati, ima beba i male dece koje ne mogu da spavaju, nema nikakve tišine za vreme kućnog reda, nepodnošljivo je živeti.

Ne znam samo kako misle da će im kupci od 3.000 po kvadratu trpeti ovakvu sukcesivnu izgradnju.
 
Jedino metro bi bio spas za ljude koji ne voze kola......a sto se vozaca tice mora da se prave nove ulice ili da se prosiruju postojece gde god moze inace su stvarno velike guzve​
Moglo je, odnosno možem još uvek na jednom delu, ali zašto bi se investitori cimali oko toga kada se i sa sokacima iz XIX i prve polovine XX veka, stanovi prodaju bez problema.
Tako ti je i na vrtovima Rakovice i okolnim projektima i lamelama na Vidikovcu koje užurbano niču. Infrastrukture nema dovoljno, naročito saobraćajnica. Pri tom jedan solidan broj vrtlara će se voziti kroz Žarkovo na putu ka poslu i gradu (jer alternativa nema mnogo) pa će tu gužva neminovno biti mnogo veća čak i bez ovog zarkovackog projekta.

Ne radujem se što je i na Žarkovu isto, već rezignirano konstatujem da tu nema pomoći niti promisli.​
Jedina alternativa je saobraćajnica ili više njih, kroz Košutnjak, ali kao što i sami znate (množina) to nije izvodljivo.
Ne znam samo kako misle da će im kupci od 3.000 po kvadratu trpeti ovakvu sukcesivnu izgradnju.​
Kupci su ti čudan soj. Jedan deo njih će da se zleti i da među prvima kupi, a onda će jedan deo njih da ćuti i trpi, a drugi da se žali na sve i svašta. Viđeno više puta. I jedan i drugi primer. . Na primer, video sam , jednom prilikom sam video ljude iz K - district koji su izveli malu decu, neka još bila u kolicima, kako se igraju i šetaju oko susedne zgrade koja se još uvek gradila i oko koje je bilo peska, šuta i sl. , a naravno i prašine ili pak decu koja sede pored tih istih gradilišta i najnormalnije jedu grickalice koje su kupili u Univerexportu.​
 
Znam, jasno mi je, ali ovi neće završiti gradnju za 5 ili 10 meseci... to će tako, s prekidima, trajati godinama i davati osećaj nedovršenosti. Render koji oni prodaju ljudima neće biti gotov za 5 godina.
 
Nije baš "metalni staklenjak", ali nije ni nešto impresivan projekat:
Pogledajte prilog 150253

Doduše, teško je govoriti o ambijentalnoj celini, kada se ovaj objekat nalazi prekoputa metalne montažne garaže, uklješten između udžerice koja remeti regulacionu liniju i drsko nadzidane i naružene modernističke zgrade.
Maršala Birjuzova 25, podnet 15.09.2023 zahtev za lokacijske uslove, po treći put. U februaru i junu su ih odbili...
 
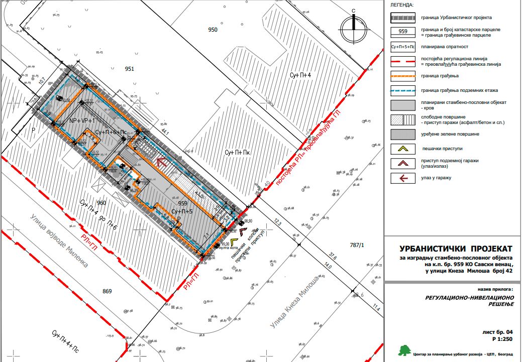
У уторак - 19.09.2023. је објављена "Јавна презентација УП за изградњу стамбено-пословног објекта на КП 959 КО Савски венац, у Улици кнеза Милоша број 42" . Овај објекат ће се градити поред породичне куће Николе Несторовића.
Све имате овде https://www.beograd.rs/cir/gradski-...enac-u-ulici-kneza-milosa-broj-42-u-beogradu/

Ортофото и неколико цртежа
ортофото.JPG


Постојећи објекти
постојећи објекти.JPG


Породична кућа Николе Несторовића
породична кућа николе несторовића.JPG


урбанистички пројекат.JPG
цртеж.JPG
цртеж_.JPG

1.JPG
2.JPG
3.JPG
 
У уторак - 19.09.2023. је објављена "Јавна презентација УП за изградњу стамбено-пословног објекта на КП 959 КО Савски венац, у Улици кнеза Милоша број 42" . Овај објекат ће се градити поред породичне куће Николе Несторовића.
Све имате овде https://www.beograd.rs/cir/gradski-...enac-u-ulici-kneza-milosa-broj-42-u-beogradu/

Ортофото и неколико цртежа
Pogledajte prilog 174179

Постојећи објекти
Pogledajte prilog 174180

Породична кућа Николе Несторовића
Pogledajte prilog 174181

Pogledajte prilog 174182Pogledajte prilog 174183Pogledajte prilog 174184
Pogledajte prilog 174185Pogledajte prilog 174186Pogledajte prilog 174187
Sasvim korektno. Baš kako treba na tom mestu.
 
Vrh