Šta je novo?

"Kvart64" [Stambeno Poslovni Kompleks | 60.598,60 m2 ]

1000024347.jpg
1000024343.jpg
 
Ima li neko informaciju kada bi trebalo da krenu radovi druge faze projekta?
 
Dobijena je i gradjevinska dozvola za Fazu 2 u kojoj ce se obaviti i rusenje ostalih starih objekata na parceli:

Screenshot 2024-07-30 at 23.40.45.png


Gradjevinska dozvola za Fazu 2 ako neko zeli da vrsi pretragu: ROP-BGDU-18800-CPIH-15/2024

Ocekujem da ce uskoro krenuti sa rusenjem objekata i prodajom faze 2, ako bih morao da pogadjam kroz 2 meseca najkasnije.
Predmeti faze 2 su objekti 2 i 3, sto predstavlja nastavak objekta u fazi 1 (nastavak na lamelu B) + manji objekat preko puta te lamele.

Faza 3 je ipak veca lamela koja je slicnih dimenzija prvoj fazi, mislio sam da ce nju prvo graditi ali su ocigledno ipak odlucili se za ove objekte.
 
Nakon prve prijave radova za Fazu 2 koja je odbijena, druga prijava je prosla:
ROP-BGDU-18800-WA-19/2024

Screenshot 2024-08-23 at 09.25.18.png



Tako da ocekujem da ce uskoro krenuti u prodaju faze 2, verovatno kroz nedelju/dve dana.
Kacim ovde jer racunam da ce cena biti najniza u tom trenutku, pa da su ljudi ovde obavesteni.
 
Cudno sa obzirom da nisu toliko vremenski razmaknute faze pa da kazes da ima razloga sto je skocila cena, verovatno im je prodaja faze 1 isla dobro pa su mozda zbog toga digli cene :/
Bas bzvz ako je stvarno tako.

Edit:
Inace skoro sam prolazio pored Airport Gardena i Grede, rade 6i sprat sada.
 
Danasnje slike, radovi napreduju, cisti se ostatak parcele za fazu 2:

media_20240911_213542_8956793616026932913.jpg

media_20240911_213542_4929731395826005872.jpg

media_20240911_213542_2053897786379310682.jpg


Zbog blata i radnika kojima nisam hteo da smetam nemam slike iz drugih uglova, nekom drugom prilikom.
 
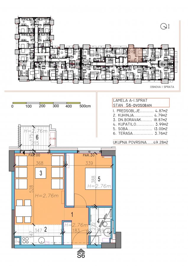
Uglavnom 2.76m, sprat ispod povucenog sprata je valjda nesto nizi, svakako imas za sve stanove napisano na crtezima pa ako te interesuje pogledaj, evo ti primer:
Pogledajte prilog 211413

Sad ne secam se koliko spustaju tacno plafon u kupatilima.
Kada su grenuli sa gradnjom?Cini mi se da bas dobro i brzo rade.
Uglavnom je visina kupatila oko 2.55-2.60m a u nekim projektima je i u kuhinjama ista visina.
 
Kada su grenuli sa gradnjom?Cini mi se da bas dobro i brzo rade.
Uglavnom je visina kupatila oko 2.55-2.60m a u nekim projektima je i u kuhinjama ista visina.
Pocetkom novembra su bili dobili gradjevinsku i nakon toga su krenuli da rasciscavaju teren / parcelu.
U aprilu su zavrsavali podzemni deo i izlazili na povrsinu, krajem maja su bili na prizemlju/ kretali prvi sprat koliko se secam.

Tako da od juna do septembra su digli jedno 4-5 spratova otprilike, po sprat na svakih 20 dana rekao bih.
 
Hvala za redovno ažuriranje napretka radova :)
Kupio takođe stan u A bloku. Mnogo je lakše pratiti kada ima dobrih ljudi koji javljaju vesti.
 
Jel ovo znaci da npr 2 i 3.sprat imaju vidljiv 2.6 ili 2.76 plafon van kupatila?
 
Jel ovo znaci da npr 2 i 3.sprat imaju vidljiv 2.6 ili 2.76 plafon van kupatila?
Svaki stan ima nacrtano po sobama, npr:

Ovaj ima svuda osim u kupatilu 2.76 plafon, nema stepenasti plafon znaci

Ovaj ima u hodniku 2,6 u sobama 2,76 a u kupatilu opet spusten plafon

Ovaj je ispod povucenog pa je stepenast prilicno , znam da mi je jedan clan sa foruma to bio skrenuo paznju i da su mu rekli da tako moralo zbog povucenog sprata da bude "stepenasto".
Svakako je super sto su oznacili na slikama pa se ne mora nagadjati puno, koliko ja vidim uglavnom su stanovi sa hodnikom i sprat ispod povucenog stepenasti malo.
 
Vrh