Šta je novo?

Park Apartmani Kalemegdan - [ Stambeni objekat ]

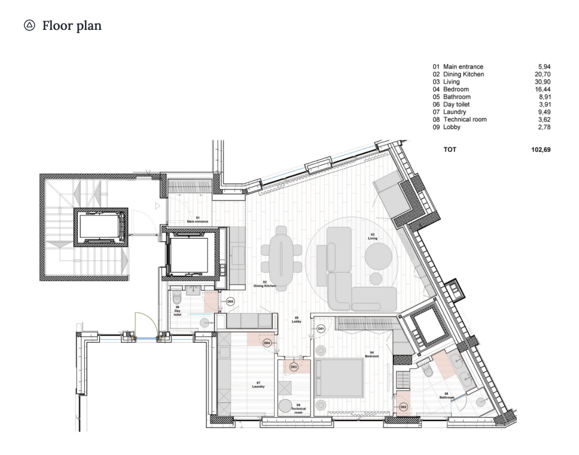
Screenshot 2025-07-06 at 07.55.13.png

Prodaje se... 100m2 za 1mil EUR + PDV, garaza 50K EUR ... https://www.turaquadra.rs/en/property/2-br-apartment-in-the-spectacular-kalemegdan-park-building/
 

Užasniji plan i raspored prostorija dugo nisam video..! Dobro, možda u onoj sličnog oblika zgradi u Ustaničkoj, malo posle specijalnog suda...što su je ugurali na kosinu između stare zgrade i autobuske stanice..!
Za ove pare, kupiš plac, sagradiš zgradu i da ti ostane. Jedino lokacija vredi-ako nekome znači da živi u tim uličicama oko Kalemegdana...
 
I ovaj povučeni sprat u dva nivoa i iznad toga ovaj nesretni golubarnik je neka teška ekskluziva? Neka nam je Bog u pomoći pored ovakvih investitora i ovakvih arhitekata.
Ne znam stvarno šta će mu još i golubarnik pored dva sprata (cenim da je to jedan stan, duplex)..možda nema mesta za recimo, letnju garderobu, cipele, ili da se povuče u skroz povučeni etaž i pravi roštilj?
 
Ne znam stvarno šta će mu još i golubarnik pored dva sprata (cenim da je to jedan stan, duplex)..možda nema mesta za recimo, letnju garderobu, cipele, ili da se povuče u skroz povučeni etaž i pravi roštilj?
U pitanju su dva nivoa, jedan stan. Na vrhu je predviđen prostor za razonodu (u "man cave" stilu, društvene igre, konzole i slično).
 
U pitanju su dva nivoa, jedan stan. Na vrhu je predviđen prostor za razonodu (u "man cave" stilu, društvene igre, konzole i slično).
Dodatak na vrhu i ove nadstresnice nisu planirani u projektu i nisu imali gradjevinsku dozvolu. Dodati su naknadno i na samom kraju po dobijanju upotrebne.
 
Dodatak na vrhu i ove nadstresnice nisu planirani u projektu i nisu imali gradjevinsku dozvolu. Dodati su naknadno i na samom kraju po dobijanju upotrebne.
Tačno, dodati su naknadno kako bi investitor upotpunio ponudu. Promenjen je raspored prostorija u odnosu na originalne planove i render-e te je dodatak bio neophodan.

Slažem se da se ne uklapa baš najbolje uz estetiku ostatka zgrade, međutim zbog vremena i rokova je napravljeno ovakvo rešenje.
Što se tiče papirologije, naknadno će biti ispunjeno sve, trenutno su početne faze useljenja u toku.
 
Tačno, dodati su naknadno kako bi investitor upotpunio ponudu. Promenjen je raspored prostorija u odnosu na originalne planove i render-e te je dodatak bio neophodan.

Slažem se da se ne uklapa baš najbolje uz estetiku ostatka zgrade, međutim zbog vremena i rokova je napravljeno ovakvo rešenje.
Što se tiče papirologije, naknadno će biti ispunjeno sve, trenutno su početne faze useljenja u toku.
kako pocetne faze kad vec ima useljenih tu. Jeste vi upravnik te zgrade?
 
kako pocetne faze kad vec ima useljenih tu. Jeste vi upravnik te zgrade?
Useljeni su samo lokali sa prednje strane (prema Kalemegdanu).
Stanovi su u pripremi, trenutno 3 ili 4 u fazi useljenja (do te mere da još uvek ni vrata na svim unutrašnjim prostorijama nisu postavljena, niti je portirnica osposobljena do kraja).

Kada kažem početne faze useljenja, mislim na sam proces završetka električarskih radova, čišćenja, i unošenja nameštaja. Još uvek se ulazi kroz garažu iz istih razloga. Tokom oktobra i novembra će se većinski broj ljudi useliti.

Nisam upravnik.
 
Useljeni su samo lokali sa prednje strane (prema Kalemegdanu).
Stanovi su u pripremi, trenutno 3 ili 4 u fazi useljenja (do te mere da još uvek ni vrata na svim unutrašnjim prostorijama nisu postavljena, niti je portirnica osposobljena do kraja).

Kada kažem početne faze useljenja, mislim na sam proces završetka električarskih radova, čišćenja, i unošenja nameštaja. Još uvek se ulazi kroz garažu iz istih razloga. Tokom oktobra i novembra će se većinski broj ljudi useliti.

Nisam upravnik.
znaci vlasnik ste stana ili radite na objektu? :)
 
Tu sam da zadovoljim znatiželju članova foruma jer objekat sam po sebi stvara veoma podeljena mišljenja. Pritom ja sam lično uvek sam raspoložen za diskusiju. :)
Generalno, meni se dizajn i dopada-osim što je sam objekat predimenzioniran žestoko, plus su pokušali da ubace i drugu parcelu jeli, u isti objekat pa su dobili neke izlomljene prostorije, kosine, neupotrebljiv prostor.. Po meni, ako za nešto tražiš 10k po kvm onda ne smeš da dozvoliš nekakve špajzove i vešeraje od po 20kvm, užasan raspored gde je kupatilo ugurano u neki oštrougaoni prostor koji nije smeo ni da postoji osim eventualno samo kao terasa...ali to sam možda samo ja..!
 
Generalno, meni se dizajn i dopada-osim što je sam objekat predimenzioniran žestoko, plus su pokušali da ubace i drugu parcelu jeli, u isti objekat pa su dobili neke izlomljene prostorije, kosine, neupotrebljiv prostor.. Po meni, ako za nešto tražiš 10k po kvm onda ne smeš da dozvoliš nekakve špajzove i vešeraje od po 20kvm, užasan raspored gde je kupatilo ugurano u neki oštrougaoni prostor koji nije smeo ni da postoji osim eventualno samo kao terasa...ali to sam možda samo ja..!
Celokupan projekat je praćen nekim upitnim odlukama koje se srećom ne odnose na kvalitet izrade i/ili materijala i završnih radova, već na odluke investitora. Neću se vraćati godinama unazad kada je aktuelni investitor i preuzeo projekat već ću Vam ispričati aktuelno stanje.

Rečeno nam je da će useljenje biti moguće početkom juna, a kao što sam već rekao stanovi su većinski još uvek prekriveni najlonom, izuzev par koji su među prvima za useljenje.
Konkretno za povučeni sprat o kome se diskutovalo, prostor je ogroman, pre naknadne ekspanzije istog, prema originalnom planu je stan planiran da bude preko 3xx kvm međutim to je sad znatno veći prostor.

Jedini problem koji je univerzalan za sve stanove je raspored prostorija koji je investitor namenio. Kupci su imali mogućnost korekcija u maloj meri, ali ona se nije odnosila na raspored ili broj tih istih prostorija. Jedino je sam vrh imao mogućnost proširenja.
 
Celokupan projekat je praćen nekim upitnim odlukama koje se srećom ne odnose na kvalitet izrade i/ili materijala i završnih radova, već na odluke investitora. Neću se vraćati godinama unazad kada je aktuelni investitor i preuzeo projekat već ću Vam ispričati aktuelno stanje.

Rečeno nam je da će useljenje biti moguće početkom juna, a kao što sam već rekao stanovi su većinski još uvek prekriveni najlonom, izuzev par koji su među prvima za useljenje.
Konkretno za povučeni sprat o kome se diskutovalo, prostor je ogroman, pre naknadne ekspanzije istog, prema originalnom planu je stan planiran da bude preko 3xx kvm međutim to je sad znatno veći prostor.

Jedini problem koji je univerzalan za sve stanove je raspored prostorija koji je investitor namenio. Kupci su imali mogućnost korekcija u maloj meri, ali ona se nije odnosila na raspored ili broj tih istih prostorija. Jedino je sam vrh imao mogućnost proširenja.
Pa da. Raspored...a to je ono glavno, to se projektuje, ako se zna... Mada, ako investitor pošto-poto hoće da nakalemi više kvadrata nego što realno treba-onda i dolazi do takvog, da kažem ''protivprirodnog bluda'' u zgradi koja je nesumljivo mogla da bude mnogo lepo mesto. Stan od 100kvm je verovatno trebao da ima barem 20% manju kvadraturu da bi bio ukusan...a za povučeni sprat sam mišljenja da jedino vredi tu jer je barem na tom nivou moglo da se ima slobode pri projektovanju.
 
Pa da. Raspored...a to je ono glavno, to se projektuje, ako se zna... Mada, ako investitor pošto-poto hoće da nakalemi više kvadrata nego što realno treba-onda i dolazi do takvog, da kažem ''protivprirodnog bluda'' u zgradi koja je nesumljivo mogla da bude mnogo lepo mesto. Stan od 100kvm je verovatno trebao da ima barem 20% manju kvadraturu da bi bio ukusan...a za povučeni sprat sam mišljenja da jedino vredi tu jer je barem na tom nivou moglo da se ima slobode pri projektovanju.
Možda je neukusno da tako kažem, ali manji stanovi su promašaj. Znam da smešno zvuči kada stan od 100kvm nazovem “malim” ali zbog samog oblika celokupnog stana kao i zbog gorenavedenog rasporeda, zaista imate osećaj da je prostor loše iskorišćen, bez ikakvog smisla i ukusa.

Sto se povučenog sprata tiče, kada se gleda spolja ljudi ne mogu tačno da vide oblik stana. Terasa ide gotovo 360 stepeni, a osnovni nivo stana je nepravilnog oblika. Sloboda oko naknadnog projektovanja je srećom postojala oko drugog nivoa, te je investitor naknadno morao da dozida taj prostor. Plafoni su izuzetno visoki pa se stvara utisak da su u pitanju 3 sprata, dok je suštinski dva nivoa + prostor za zabavu na vrhu u 2.5 stilu.
 
Možda je neukusno da tako kažem, ali manji stanovi su promašaj. Znam da smešno zvuči kada stan od 100kvm nazovem “malim” ali zbog samog oblika celokupnog stana kao i zbog gorenavedenog rasporeda, zaista imate osećaj da je prostor loše iskorišćen, bez ikakvog smisla i ukusa.
jasno...mada sam vidjao i garsonjere od 50+ kvadrata...jeste veliko, prostorno gledano, ali to je i dalje mali stan..!
 
jasno...mada sam vidjao i garsonjere od 50+ kvadrata...jeste veliko, prostorno gledano, ali to je i dalje mali stan..!
Mislim da je važno napraviti poređenje vezano za uslove.

Ako izuzmemo čitav objekat iz priče i sve što dolazi uz to (lokacija, kvalitet itd) i sagledamo samo individualne stanove, ne računajući povučeni sprat, mislim da je krajnje uvredljivo ustupiti takvu ponudu potencijalnim kupcima.

Gledajući trenutno tržište u zemlji i regionu, ovo je jedan od najskupljih stambenih projekata koji su ikad bili dostupni na tržištu.
Ne samo što je ovaj projekat direktno izazvao pojavu da sada Srpski Kralj odmah pored, kao i drugi projekti poput Marine na Dorćolu i određenih projekata u CG traže €10k+ po kvadratu za pojedinačne stanove, samim tim upropastivši dostupnost istih na tržištu; Već je pokazao da je čak i za taj nivo ekskluzive, sama ponuda izuzetno loša.

Za ono što se traži, opet napominjem izuzev PS, rešenje za pojedinačne stanove je moglo biti znatno, znatno bolje i mislim da je važno napraviti to poređenje.
 
Vrh