Šta je novo?

Nemanjin grad [Stambeno poslovni kompleks]

Drage komsije, nalepite neku svezu fotografiju izgradnje naselja da vide svi oni koji ne prolaze cesto pored Nemanjinog grada. Hvala.
 
Да ли може информација преко које банке се врше уплате рата, у којој банци је рачун инвеститора?
 
U predugovoru su bili dinarski i devizni računi u komercijalnoj, otp, intesi i unikredit banci.
 
Ja sam bila u prolazu pre neki dan i neverovatno je kolika je "rupa" sada u odnosu na prethodni put kad sam videla.
Napreduju dosta brzo po mojoj proceni.
 
Ja sam bila u prolazu pre neki dan i neverovatno je kolika je "rupa" sada u odnosu na prethodni put kad sam videla.
Napreduju dosta brzo po mojoj proceni.
Napreduju dobro. Ne samo da su stigli do temelja nego je armirano-betonska konstrukcija garaža lamela A i B skoro gotova.
Čak su jutros uterali šleper vešto manevrišući pored blokade.

Drage komsije, nalepite neku svezu fotografiju izgradnje naselja da vide svi oni koji ne prolaze cesto pored Nemanjinog grada. Hvala.
Imate slike od pre 10 dana, a koliko god da brzo rade ne možete baš očekivati slike na svakih 7-10 dana i veliku razliku na njima jer je to veliki kompleks.
 
viber_image_2025-07-04_16-25-04-721.jpg


Evo slika iz perionice. Ne znam kad planiraju da krenu sa lamelama E,F,D, tu nema temelja još uvek.
 
Jedno pitanje,
Prodjem povremeno pored gradilista,vidim da su u nivou lamele A i B garaže već došle do nivoa 0.
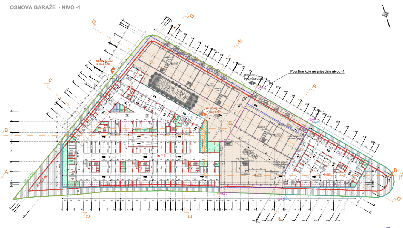
Znam da će na -1 biti garaže namenjene korisnicima zdravstvene ustanove, medjutim u tom delu,ispod lamele A i B ja vidim 2 nivoa garaža do nivoa 0, očekivao sam 3.
Pitanje,da li u tom delu kompleksa postoje 3 nivoa garaža,jer po slikama projekta, ne bih rekao da će -1 biti iznad zemlje 😁
 
Znam da će na -1 biti garaže namenjene korisnicima zdravstvene ustanove

Ovde ljudi često pominju neku zdravstvenu ustanovu, ne znam odakle vam ta informacija, ko vas je to slagao? Ako mislite na poslovnu lamelu, tu će biti poslovni objekti, lokali, od kojih će možda neki biti klinika, ali ne ceo objekat. Taj objekat ima svoja garažna mesta na tri nivoa nezavisno od stambenih lamela.

Što se tiče lamela A, B, C i H, one imaju samo 2 nivoa garaža: -3 i -2, za razliku od lamela D, E, F i G koje imaju i -1.

Sve može lepo da se vidi na projektu:

Screenshot 7.png


Lamele A, B, C i H su na nižoj nadmorskoj visini od ostalih lamela, tako da je prizemlje u njihovom slučaju praktično u ravni sa -1 garažom ostalih lamela.

Inače, nivo -1 će biti namenjen za lokale, zato tu i ne mogu da se kupuju garažna mesta za stanare.
 
Ovde ljudi često pominju neku zdravstvenu ustanovu, ne znam odakle vam ta informacija, ko vas je to slagao? Ako mislite na poslovnu lamelu, tu će biti poslovni objekti, lokali, od kojih će možda neki biti klinika, ali ne ceo objekat. Taj objekat ima svoja garažna mesta na tri nivoa nezavisno od stambenih lamela.

Što se tiče lamela A, B, C i H, one imaju samo 2 nivoa garaža: -3 i -2, za razliku od lamela D, E, F i G koje imaju i -1.

Sve može lepo da se vidi na projektu:

Pogledajte prilog 243976

Lamele A, B, C i H su na nižoj nadmorskoj visini od ostalih lamela, tako da je prizemlje u njihovom slučaju praktično u ravni sa -1 garažom ostalih lamela.

Inače, nivo -1 će biti namenjen za lokale, zato tu i ne mogu da se kupuju garažna mesta za stanare.
Hvala puno na odgovoru.
Meni je tako rečeno prilikom kupovine da je -1 namenjen za korisnike poslovne zgrade.
Ne mogu sa sigurnošću da kažem da li mi je rečeno da će deo ili cela poslovna zgrada biti namenjena zdravstvenoj ustanovi,ali sa sigurnošću mogu da kažem da mi je rečeno da će biti zdravstvena ustanova Euromedik
 
Mislim da vam nisu lepo objasnili, jer kao što vidite nivo garaže -1 stambenih zgrada je potpuno odvojen od -1 poslovne zgrade. Kao što sam napisao, ja imam informaciju da će nivo -1 u stambenom delu biti predviđen za lokale koji će se nalaziti u prizemlju stambenih zgrada.

Što se tiče Euromedika, zar zaista mislite da će cela ova zgrada na tolikoj površini i toliko spratova biti klinika? Objekat će definitivno biti u vlasništvu Euromedika, ali oni će iznajmljivati lokale u okviru tog objekta firmama, a samo jedan od lokala će možda biti i njihova klinika.

To su informacije sa kojima ja raspolažem.
 
Koliko mogu da zaključim sa gradilišta, oni još uvek nisu počeli radove na poslovnoj zgradi, a na sajtu stoji da je cela poslovna zgrada na prodaju.
Po tome bih rekao da očekuju da nađu kupca za celu poslovnu zgradu.

1751923873771.png
 
Поздрав! Да ли неко зна има ли, за сада познатих, одступања од од пројекта који је радио Еликсир.
Нисам баш стручан, али сам приметио неке разлике при презентацији комплекса и стана у односу на овде раније приложен фајл са пројектом...
 
Нисам баш стручан, али сам приметио неке разлике при презентацији комплекса и стана у односу на овде раније приложен фајл са пројектом...
Koje ste razlike primetili? Estetske ili neke bitnije?
 
Ima dosta izmena koje sam ja primetio. Uglavnom je to tu i tamo neka promena zarad bolje iskoriscenosti prostora.

Ono sto sam ja primetio:
  • lamele E, F i G su prvobitno imale vise cetvorosobnih. Sad su to sve manji stanovi koji gledaju na Sumadijske Divizije.
  • Prethodno je svaki ulaz u lameli D bio nezavistan, sad su spojeni vratima. Samim tim i neki stanovi drugaciji
  • Instalacije u lameli D su drugacije rasporedjene
  • Parking mesta se neka razlikuju. Neka mesta je Nova Vizantija ukinula a neka prenamenila
 
Постоје станови којима су прозори без парапета, до пода, ако сам добро схватио из скица. Да ли неко има искуства са таквим решењем и да ли је то предност или мана?
 
Постоје станови којима су прозори без парапета, до пода, ако сам добро схватио из скица. Да ли неко има искуства са таквим решењем и да ли је то предност или мана?

To ti je tzv. francuski balkon, a zavisi sa kojom veličinom prozora ga porediš. Ako je prozor veliki (a obično jesu u novogradnji) i on će omogućiti dosta svetlosti.
Radijator je obično ispod prozora što je po meni prednost dok kod francuskog balkona to nije moguće.
Prozori obično bolje dihtuju i pružaju više privatnosti dok je francuski balkon neko rešenje između prozora i balkona koje može biti ok kod garsonjere koja nema terasu.
Sve zavisi šta ko preferira i od strukture samog stana.
 
У продаји су нам рекли да ће спољашњи изглед ламела бити сличан по избору материјала и декорација Палати Византија, што се по мом тумачењу разликује од пројекта.

Такође да ће гараже пословне зграде бити одвојене од стамбеног дела, а на пројекту смо приметили да постоји веза, тј. да се може кроз гаражни део проћи до пословне зграде...
 
To ti je tzv. francuski balkon, a zavisi sa kojom veličinom prozora ga porediš. Ako je prozor veliki (a obično jesu u novogradnji) i on će omogućiti dosta svetlosti.
Radijator je obično ispod prozora što je po meni prednost dok kod francuskog balkona to nije moguće.
Prozori obično bolje dihtuju i pružaju više privatnosti dok je francuski balkon neko rešenje između prozora i balkona koje može biti ok kod garsonjere koja nema terasu.
Sve zavisi šta ko preferira i od strukture samog stana.
Да, хвала на објашњењу. Није то лоша варијанта онда, али само ако уграде квалитетну столарију са три стакла...
 
Komšije. Kako vidim dosta stanova su skinuli sa sajta. Prodaja izgleda ide dobro a tek kad se izadje iz zemlje....
 
Komšije. Kako vidim dosta stanova su skinuli sa sajta. Prodaja izgleda ide dobro a tek kad se izadje iz zemlje....
Da, oko 200 stanova je slobodno na sajtu.
Od ovih manjih najviše prvi i šesti sprat, a mislim da će ovaj trouglasti stan 5.6 teže prodati i kad izađu iz zemlje :)
 
Prodjoh malopre, poceli su -1 da rade za lamele A, B i C. Cela traka u Peka Dapcevica je bila zatvorena jer je tu stajalo jedno 15 kamiona mesalica. Vrlo impresivno.
 
Prodjoh malopre, poceli su -1 da rade za lamele A, B i C. Cela traka u Peka Dapcevica je bila zatvorena jer je tu stajalo jedno 15 kamiona mesalica. Vrlo impresivno.
To je onda prizemlje lamela A, B i C jer one nemaju -1 nivo garaže.
Ako tako nastave možda stignu do trećeg sprata armirano-betonske konstrukcije svih lamela do kraja jeseni.
 
Tako je, ali sam prilicno siguran da ce se to i dalje voditi kao -1. Tako je bar u ostalim zgradama na neravnom terenu, za koje znam.

Ako tako nastave možda stignu do trećeg sprata armirano-betonske konstrukcije svih lamela do kraja jeseni.
Elixir je trebao da gradi prvo 3 nivoa garaza svih lamela, pa tek onda u fazama ostatak. Ako se time vode i oni, a trebalo bi zbog gradjevinske dozvole, ne verujem da ce biti bas toliko brzi. Sve sto je do sad napravljeno je vezano za te donje lamele, ostatak je skoro prazan.
 
Vrh